夜间模式
  • 161777阅读
  • 2回复

万科印象花园装修日记99平 [复制链接]

上一主题 下一主题
帅哥离线女汉子呱呱
级别: 昆山新人
发帖
114
昆币
213 枚
只看楼主 使用道具 电梯直达
楼主  发表于: 2023-05-05 , 来自:江苏省0==
家装日记
小区: 万科印象花园
套内面积: 99 (平米)
预算:
开工日期:
装修风格: 简约
装修方式: 半包
装修公司: 华易达装饰设计
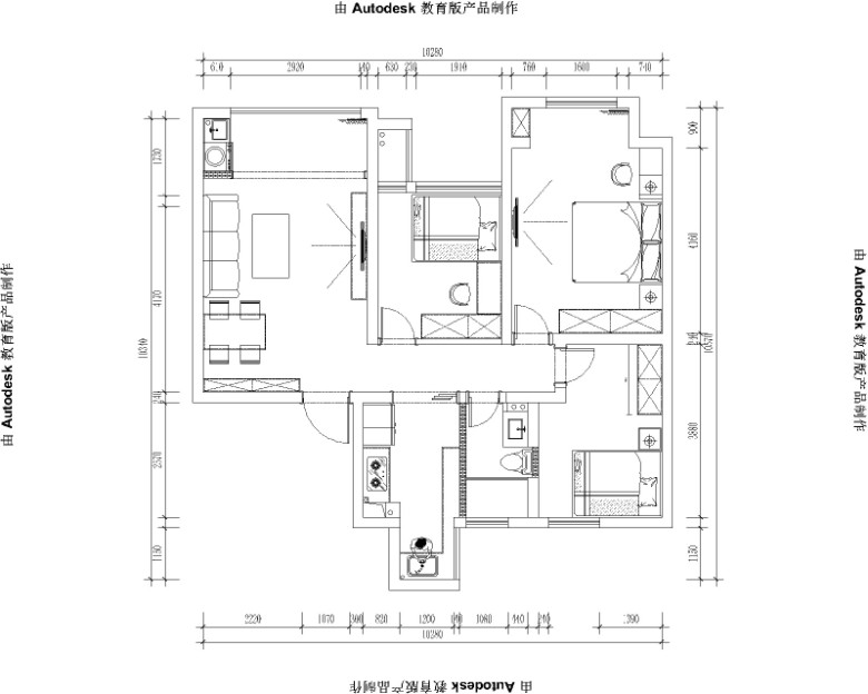
我家是99平的,户型是这样的



效果图出来
















本帖评分记录
喜欢喝白开水 昆币 +1 -来自昆山论坛APP 2024-12-25
昆山伟宏门窗 昆币 +1 -来自昆山论坛APP 2023-05-07
2条评分昆币+2
爆料有奖!关注昆山论坛抖音号,抖音搜索“昆山论坛”,或搜索抖音号:ksbbs
 
帅哥离线女汉子呱呱
级别: 昆山新人
发帖
114
昆币
213 枚
沙发  发表于: 2023-05-05 , 来自:江苏省0==
设计师是王设计师,管家是曹经理
爆料有奖!关注昆山论坛抖音号,抖音搜索“昆山论坛”,或搜索抖音号:ksbbs
 
美女离线昆山伟宏门窗
级别: 禁止发言

发帖
18978
昆币
32400 枚
板凳  发表于: 2023-05-07 , 来自:江苏省0==
用户被禁言,该主题自动屏蔽!
爆料有奖!关注昆山论坛抖音号,抖音搜索“昆山论坛”,或搜索抖音号:ksbbs
 
快速回复
限76 字节
如果您提交过一次失败了,可以用”恢复数据”来恢复帖子内容
 
上一个 下一个