夜间模式
  • 736015阅读
  • 31回复

兰亭栖云装修进行时,很快就可以一个人独居啦! [复制链接]

上一主题 下一主题
级别: 昆山新人
发帖
160
昆币
247 枚
只看楼主 使用道具 电梯直达
楼主  发表于: 2024-04-10 , 来自:江苏省0==
家里装修起于论坛,怎么说呢,就是通过咱昆山论坛找到的心仪装修公司,一切顺利开启中,是我运气好还是我判断力不错呢。

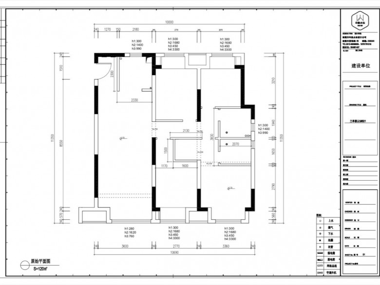
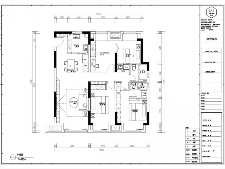
面积120平 现代极简
目前装修进度:瓦工结束,美缝安排中,木工安排中
装修公司:印象水仙设计(设计+施工)

这是1月开工照,红红火火的先放开头说。新家装修,记个流水账。


论家里的设计方案,我很是满意,我老妈也非常认可。
原本的四室改成三室,客房空间亦可做独立书房,两全其美。



之前随拍的水电施工现场,我是不大懂,还好我家里人懂一些装修,他们挺认可,那我也没话说。







卫生间防水OK


瓷砖铺贴结束,美缝上胶中!






本帖评分记录
曾踏月而来 昆币 +1 -来自昆山论坛APP 2024-05-11
昆山伟宏门窗 昆币 +1 -来自昆山论坛APP 2024-04-11
2条评分昆币+2
爆料有奖!关注昆山论坛抖音号,抖音搜索“昆山论坛”,或搜索抖音号:ksbbs
 
离线qiejiang64
级别: 昆山过客
发帖
17
昆币
26 枚
沙发  发表于: 2024-04-10 , 来自:江苏省0==
恭喜,单身独居真香啊
爆料有奖!关注昆山论坛抖音号,抖音搜索“昆山论坛”,或搜索抖音号:ksbbs
 
美女离线昆山伟宏门窗
级别: 禁止发言

发帖
18978
昆币
32400 枚
板凳  发表于: 2024-04-11 , 来自:江苏省0==
用户被禁言,该主题自动屏蔽!
爆料有奖!关注昆山论坛抖音号,抖音搜索“昆山论坛”,或搜索抖音号:ksbbs
 
离线congku3145
级别: 昆山过客
发帖
24
昆币
43 枚
地板  发表于: 2024-04-11 , 来自:江苏省0==
设计方案 我也觉得不错
爆料有奖!关注昆山论坛抖音号,抖音搜索“昆山论坛”,或搜索抖音号:ksbbs
 
离线水鹿
级别: 初来乍到
发帖
4
昆币
4 枚
4楼 发表于: 2024-04-13 , 来自:上海市0==
恭喜恭喜,求装修公司的联系方式~谢谢啦
爆料有奖!关注昆山论坛抖音号,抖音搜索“昆山论坛”,或搜索抖音号:ksbbs
 
级别: 昆山新人
发帖
160
昆币
247 枚
5楼 发表于: 2024-04-15 , 来自:江苏省0==
喜欢干干净净,极简设计yyds



爆料有奖!关注昆山论坛抖音号,抖音搜索“昆山论坛”,或搜索抖音号:ksbbs
 
帅哥离线印象水仙设计
发帖
11322
昆币
19389 枚
6楼 发表于: 2024-04-19 , 来自:江苏省0==
感谢楼主的支持
爆料有奖!关注昆山论坛抖音号,抖音搜索“昆山论坛”,或搜索抖音号:ksbbs
 
级别: 昆山新人
发帖
160
昆币
247 枚
7楼 发表于: 2024-04-24 , 来自:江苏省0==
这两天没去房子里,木工师傅活干的不错,加油!



爆料有奖!关注昆山论坛抖音号,抖音搜索“昆山论坛”,或搜索抖音号:ksbbs
 
离线qiejiang64
级别: 昆山过客
发帖
17
昆币
26 枚
8楼 发表于: 2024-05-11 , 来自:江苏省0==
全屋定制还是现场打柜子好
楼中楼
  • 2024-05-11 11:14 曾踏月而来: 我们家现场打的
爆料有奖!关注昆山论坛抖音号,抖音搜索“昆山论坛”,或搜索抖音号:ksbbs
 
级别: 昆山新人
发帖
160
昆币
247 枚
9楼 发表于: 2024-05-11 , 来自:江苏省0==
5月初拍的家里工地进度,木工师傅手艺我是认可的,所以家里的柜子也决定不定制,现场打,我觉得好的木工打出来的柜子肯定比定制的质量更好,性价比还高。






爆料有奖!关注昆山论坛抖音号,抖音搜索“昆山论坛”,或搜索抖音号:ksbbs
 
快速回复
限76 字节
如果您提交过一次失败了,可以用”恢复数据”来恢复帖子内容
 
上一个 下一个