夜间模式
  • 21620阅读
  • 15回复

[装修讨论]装修日记~二手房改造有点难度,记录下改造过程(昆山华庭宜居)。 [复制链接]

上一主题 下一主题
美女离线小石子-路
发帖
3664
昆币
3408 枚
只看楼主 使用道具 电梯直达
楼主  发表于: 2018-08-15 , 来自:江苏省0==
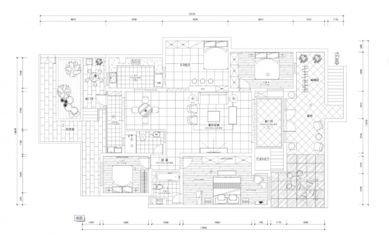
从买房到拿房困难丛丛,好事多磨,半年过去了,终于要装修了,由于改造,硬装动的地方不多,之前考虑是否自己搞游击,后来上班太忙没时间,还是交给装修公司吧。比较了一下还是选择了之前合作过的华庭宜居。感谢魏总及芙蓉设计师。。。
2018-8-15      10:08分开工。。。。

本帖评分记录
菜菜r 昆币 +1 -来自昆山论坛APP 2018-08-15
昆山伟宏门窗 昆币 +1 - 2018-08-15
昆山封阳台 昆币 +1 -来自昆山论坛APP 2018-08-15
3条评分昆币+3
爆料有奖!关注昆山论坛抖音号,抖音搜索“昆山论坛”,或搜索抖音号:ksbbs
 
美女离线小石子-路
发帖
3664
昆币
3408 枚
沙发  发表于: 2018-08-15 , 来自:江苏省0==
沙发。。

爆料有奖!关注昆山论坛抖音号,抖音搜索“昆山论坛”,或搜索抖音号:ksbbs
 
美女离线荣盛门窗
级别: 禁止发言

发帖
7737
昆币
8552 枚
板凳  发表于: 2018-08-15 , 来自:江苏省0==
用户被禁言,该主题自动屏蔽!
爆料有奖!关注昆山论坛抖音号,抖音搜索“昆山论坛”,或搜索抖音号:ksbbs
 
级别: 昆山新人
发帖
174
昆币
330 枚
地板  发表于: 2018-08-15 , 来自:江苏省0==
恭喜楼主,房子好大
爆料有奖!关注昆山论坛抖音号,抖音搜索“昆山论坛”,或搜索抖音号:ksbbs
 
美女离线昆山伟宏门窗
级别: 禁止发言

发帖
18978
昆币
32400 枚
4楼 发表于: 2018-08-15 , 来自:江苏省0==
用户被禁言,该主题自动屏蔽!
爆料有奖!关注昆山论坛抖音号,抖音搜索“昆山论坛”,或搜索抖音号:ksbbs
 
美女离线小石子-路
发帖
3664
昆币
3408 枚
5楼 发表于: 2018-08-16 , 来自:江苏省0==
这两天敲墙师傅辛苦了。


爆料有奖!关注昆山论坛抖音号,抖音搜索“昆山论坛”,或搜索抖音号:ksbbs
 
美女离线小石子-路
发帖
3664
昆币
3408 枚
6楼 发表于: 2018-08-17 , 来自:江苏省0==
今天已基本敲完了,赶上台风大雨,估计得停两天了。

爆料有奖!关注昆山论坛抖音号,抖音搜索“昆山论坛”,或搜索抖音号:ksbbs
 
美女离线小石子-路
发帖
3664
昆币
3408 枚
7楼 发表于: 2018-08-28 , 来自:江苏省0==
最近太忙了,瓦工基本结束了,过两天木工过来。




爆料有奖!关注昆山论坛抖音号,抖音搜索“昆山论坛”,或搜索抖音号:ksbbs
 
美女离线小石子-路
发帖
3664
昆币
3408 枚
8楼 发表于: 2018-09-14 , 来自:江苏省0==
小石子-路:最近太忙了,瓦工基本结束了,过两天木工过来。
[图片]
[图片]
[图片]
[图片]
....... (2018-08-28 20:41) 

慢慢进行中。。

爆料有奖!关注昆山论坛抖音号,抖音搜索“昆山论坛”,或搜索抖音号:ksbbs
 
帅哥离线麦克小凳子
级别: 昆山新人
发帖
185
昆币
411 枚
9楼 发表于: 2018-09-18 , 来自:上海市0==
楼主几年的老房子呢,水电重新做了没,厕所厨房呢?
最近准备看装修风格了,想问问
爆料有奖!关注昆山论坛抖音号,抖音搜索“昆山论坛”,或搜索抖音号:ksbbs
 
快速回复
限76 字节
如果您提交过一次失败了,可以用”恢复数据”来恢复帖子内容
 
上一个 下一个