夜间模式
  • 310753阅读
  • 76回复

【寅盛杯装修日记大赛】+小美式田园梦 [复制链接]

上一主题 下一主题
帅哥离线溜溜那个球球
级别: 昆山过客
发帖
12
昆币
272 枚
只看楼主 使用道具 电梯直达
楼主  发表于: 2018-09-30 , 来自:浙江0==
家装日记
小区: 绿地
套内面积: 88 (平米)
预算: 10 万
开工日期: 2018-01-24
装修风格: 美式
装修方式: 全包
装修公司: 寅盛

面朝大海,春暖花开
从明天起,做一个幸福的人
喂马、劈柴,周游世界
从明天起,关心粮食和蔬菜
我有一所房子,面朝大海,春暖花开

从明天起,和每一个亲人通信
告诉他们我的幸福
那幸福的闪电告诉我的
我将告诉每一个人

给每一条河每一座山取一个温暖的名字
陌生人,我也为你祝福
愿你有一个灿烂的前程
愿你有情人终成眷属
愿你在尘世获得幸福
我只愿面朝大海,春暖花开
                                                  ——海子


                   海子的这首唯美的诗写于80后的出生年代,唯美的背后略显凄凉,同时也写出了正常人的日常生活需求、接地气自然也就受欢迎;
        第一次写类似于博客的文章,首先感谢寅盛公司组织的这次活动,明天也就是18年国庆节,我刚好要办乔迁宴,觉得这个机会有这个活动恰巧做个纪念。目前我们的小美式田园小三房已经是装修好的,并且已经准备入住了,所以我的文章肯定是以倒叙的方式来写了。
         整个文章的大致顺序:
效果图+平面图——新房图片——装修前的选择以及确定——装修进度——硬装验收——软装配置——附带老家乔迁风俗
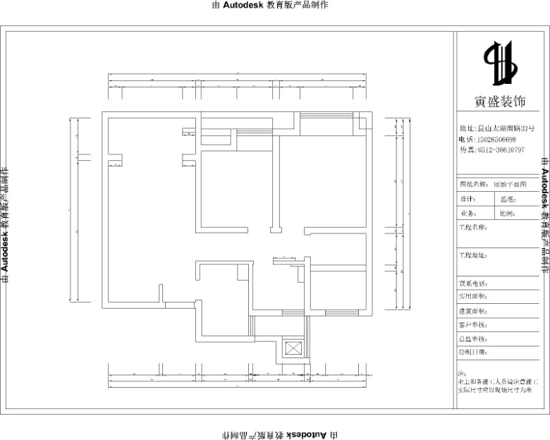
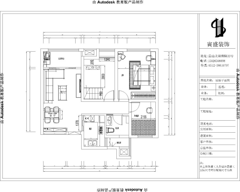
          效果图+平面图
整体风格:小美式田园风格;
房型:绿地88平双南小三房,也就是送了一个小房间的那种经典户型

[ 此帖被溜溜那个球球在2018-09-30 15:55重新编辑 ]
本帖评分记录
小小615 昆币 +1 -来自昆山论坛APP 2019-09-01
樱桃小包子 昆币 +10 - 2018-10-09
水清er 昆币 +1 -来自昆山论坛APP 2018-10-06
溜溜那个球球 昆币 +1 -来自昆山论坛APP 2018-10-06
昆山张家辉 昆币 +1 -来自昆山论坛APP 2018-10-01
在外不容易 昆币 +1 -来自昆山论坛APP 2018-10-01
装修版客服 昆币 +10 - 2018-09-30
寅盛装饰小董 昆币 +1 -来自昆山论坛APP 2018-09-30
丫头°雅丽 昆币 +1 -来自昆山论坛APP 2018-09-30
9条评分昆币+27
爆料有奖!关注昆山论坛抖音号,抖音搜索“昆山论坛”,或搜索抖音号:ksbbs
 
发帖
6918
昆币
6420 枚
沙发  发表于: 2018-09-30 , 来自:江苏省0==
感谢楼主开贴哈!继续更新哈!
欢迎关注【寅盛装饰】专注无毒家装9年
首创《无毒饮水系统》《无毒木饰面系统》《无毒墙面系统》三大无毒系统给你一个健康环保的家
公司官网:[url][urlend2]
VR案例:[url][urlend2]
精品案例:[url][urlend2]
公司官方微信公众号:yinszs
客服电话:18994472295
公司地址:城东店:昆山市太湖路588号左岸尚海湾3-103商铺 ( 近震川东路,阳光水世界对面 )
城北店:昆山市柏庐北路94号(柏庐大桥向北200米左右)



[ 此帖被寅盛装饰设计在2018-09-30 15:41重新编辑 ]
爆料有奖!关注昆山论坛抖音号,抖音搜索“昆山论坛”,或搜索抖音号:ksbbs
 
离线糖成雨
级别: 昆山过客
发帖
32
昆币
80 枚
板凳  发表于: 2018-09-30 , 来自:江苏省0==
      
爆料有奖!关注昆山论坛抖音号,抖音搜索“昆山论坛”,或搜索抖音号:ksbbs
 
离线丸子小孩
级别: 初来乍到
发帖
8
昆币
17 枚
地板  发表于: 2018-09-30 , 来自:江苏省0==
爆料有奖!关注昆山论坛抖音号,抖音搜索“昆山论坛”,或搜索抖音号:ksbbs
 
帅哥离线溜溜那个球球
级别: 昆山过客
发帖
12
昆币
272 枚
4楼 发表于: 2018-09-30 , 来自:江苏省0==
要赶着回家接父母,准备明天宴事宜 回头更新哈
本帖评分记录
丫头°雅丽 昆币 +1 -来自昆山论坛APP 2018-09-30
1条评分昆币+1
爆料有奖!关注昆山论坛抖音号,抖音搜索“昆山论坛”,或搜索抖音号:ksbbs
 
美女离线装修版客服
发帖
10174
昆币
22137 枚
5楼 发表于: 2018-09-30 , 来自:江苏省0==
灵的灵的,恭喜楼主
爆料有奖!关注昆山论坛抖音号,抖音搜索“昆山论坛”,或搜索抖音号:ksbbs
 
级别: 昆山新人
发帖
103
昆币
249 枚
6楼 发表于: 2018-09-30 , 来自:未知0==
文采过人
爆料有奖!关注昆山论坛抖音号,抖音搜索“昆山论坛”,或搜索抖音号:ksbbs
 
级别: 昆山过客
发帖
21
昆币
52 枚
7楼 发表于: 2018-09-30 , 来自:江苏省0==
厉害了我的楼主
爆料有奖!关注昆山论坛抖音号,抖音搜索“昆山论坛”,或搜索抖音号:ksbbs
 
美女离线kitty毛
级别: 昆山过客
发帖
83
昆币
164 枚
8楼 发表于: 2018-09-30 , 来自:江苏省0==
快点上实际图,恭喜明天乔迁之喜

楼主留言:

已发照片图哈哈

爆料有奖!关注昆山论坛抖音号,抖音搜索“昆山论坛”,或搜索抖音号:ksbbs
 
帅哥离线昆山张家辉
级别: 初来乍到
发帖
5
昆币
15 枚
9楼 发表于: 2018-10-01 , 来自:江苏省0==
厉害了
爆料有奖!关注昆山论坛抖音号,抖音搜索“昆山论坛”,或搜索抖音号:ksbbs
 
快速回复
限76 字节
如果您在写长篇帖子又不马上发表,建议存为草稿
 
上一个 下一个