夜间模式
  • 109898阅读
  • 35回复

这个冬天不太冷!兰亭御园开工啦! [复制链接]

上一主题 下一主题
离线jojochen812
级别: 昆山新人
发帖
417
昆币
705 枚
只看楼主 使用道具 电梯直达
楼主  发表于: 2020-01-05 , 来自:未知0==
2018年,家里迎来了二胎妹妹,老大弟弟也不过才两岁都不到,两个娃都小都需要人看,无奈下,只能娘家婆家一家带一个。一家在城东一家在城西,每天我们两夫妻城东城西两头跑,平时我说两家离得太远的时候,老公都会反驳说昆山就那么大,还能远到哪里去!终于有一天,他也忍不住和我感慨说好像真的有点远,一来一回开车要小两个钟头好累啊。既然他也这么说了,我就顺水推舟把我一直以来换房的想法提上了日程。中间买房的一波多折就不多说了,今年入手的兰亭御园终于交房啦!马上开工!
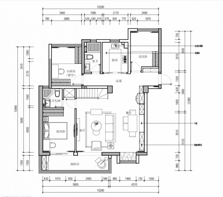
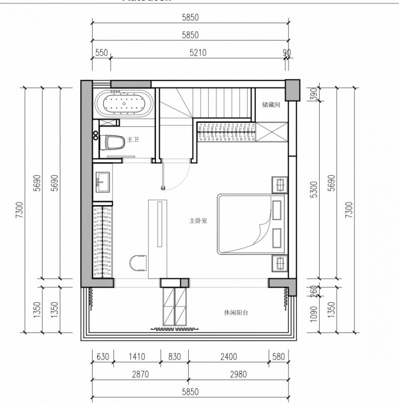
先上一波签约、开工和设计图!



这次对于装修公司的选择不多纠结了,还是选择了曾经为我们装修婚房的1918!装修公司千千万,我不说1918装修质量有多高,价格多么低,没有哪家装修公司能做到十全十美,我只需要一家沟通顺畅,有问题就抓紧改的公司!1918合作愉快!设计师歌子考虑问题很细致!合作愉快!


再来一波效果图!在此立帖,记录小家的逐步成型!




本帖评分记录
不动脑的兔子 昆币 +1 -来自昆山论坛APP 2020-03-28
昆山封阳台 昆币 +1 -来自昆山论坛APP 2020-01-08
如鱼若水 昆币 +1 -来自昆山论坛APP 2020-01-06
3条评分昆币+3
爆料有奖!关注昆山论坛抖音号,抖音搜索“昆山论坛”,或搜索抖音号:ksbbs
 
帅哥离线严平
级别: 昆山过客
发帖
12
昆币
15 枚
沙发  发表于: 2020-01-05 , 来自:未知0==
168挑高户型吗
爆料有奖!关注昆山论坛抖音号,抖音搜索“昆山论坛”,或搜索抖音号:ksbbs
 
离线jojochen812
级别: 昆山新人
发帖
417
昆币
705 枚
板凳  发表于: 2020-01-05 , 来自:江苏省0==
严平:168挑高户型吗 (2020-01-05 15:43) 

143挑高
爆料有奖!关注昆山论坛抖音号,抖音搜索“昆山论坛”,或搜索抖音号:ksbbs
 
美女离线昆山和美门窗
级别: 禁止发言
发帖
7597
昆币
22038 枚
地板  发表于: 2020-01-05 , 来自:江苏省0==
用户被禁言,该主题自动屏蔽!
爆料有奖!关注昆山论坛抖音号,抖音搜索“昆山论坛”,或搜索抖音号:ksbbs
 
帅哥离线小熊系统门窗
级别: 昆山新人
发帖
197
昆币
8749 枚
4楼 发表于: 2020-01-05 , 来自:江苏省0==
恭喜恭喜 开工大吉
爆料有奖!关注昆山论坛抖音号,抖音搜索“昆山论坛”,或搜索抖音号:ksbbs
 
帅哥离线老麻子
发帖
5875
昆币
10802 枚
5楼 发表于: 2020-01-06 , 来自:上海市0==
楼上的主卧感觉真不错
爆料有奖!关注昆山论坛抖音号,抖音搜索“昆山论坛”,或搜索抖音号:ksbbs
 
帅哥离线伊泽
发帖
6307
昆币
4933 枚
6楼 发表于: 2020-01-06 , 来自:江苏省0==
不错不错,蛮好看的
爆料有奖!关注昆山论坛抖音号,抖音搜索“昆山论坛”,或搜索抖音号:ksbbs
 
美女离线网红小姐姐

发帖
2926
昆币
6896 枚
7楼 发表于: 2020-01-06 , 来自:江苏省0==
    
爆料有奖!关注昆山论坛抖音号,抖音搜索“昆山论坛”,或搜索抖音号:ksbbs
 
美女离线含千金
级别: 昆山新人
发帖
396
昆币
772 枚
8楼 发表于: 2020-01-07 , 来自:未知0==
装修不易啊,邻居
爆料有奖!关注昆山论坛抖音号,抖音搜索“昆山论坛”,或搜索抖音号:ksbbs
 
离线jojochen812
级别: 昆山新人
发帖
417
昆币
705 枚
9楼 发表于: 2020-01-07 , 来自:未知0==
含千金:装修不易啊,邻居[表情] (2020-01-07 16:38) 

太辛苦了!脑细胞死了不少
爆料有奖!关注昆山论坛抖音号,抖音搜索“昆山论坛”,或搜索抖音号:ksbbs
 
快速回复
限76 字节
如果您提交过一次失败了,可以用”恢复数据”来恢复帖子内容
 
上一个 下一个