夜间模式
  • 197464阅读
  • 13回复

开工啦!!第一次参加30人的集体开工的仪式!!震撼 [复制链接]

上一主题 下一主题
离线18962555712
级别: 昆山过客
发帖
23
昆币
37 枚
只看楼主 使用道具 电梯直达
楼主  发表于: 2021-07-11 , 来自:江苏省0==
家装日记
小区: 三盛璞悦湾
套内面积: 108 (平米)
预算: 15 万
开工日期: 2021-07-11
装修风格: 简约
装修方式:
装修公司: 齐家典尚&华赢乐家


吉时至,万物始,上午9:08分,参加了齐家典尚&华赢乐家举办的集体开工仪式!


生活需要仪式感,更何况装修是一件大事呢!铺了红地毯,放了礼花炮,家装也算个工程,有点仪式感,图个吉利。






















本帖评分记录
垂丝逸影 昆币 +1 -来自昆山论坛APP 2021-12-26
猪猪仙 昆币 +1 -来自昆山论坛APP 2021-08-09
港龙大金空调 昆币 +1 -来自昆山论坛APP 2021-07-19
昆山伟宏门窗 昆币 +1 -来自昆山论坛APP 2021-07-16
4条评分昆币+4
爆料有奖!关注昆山论坛抖音号,抖音搜索“昆山论坛”,或搜索抖音号:ksbbs
 
发帖
1492
昆币
750 枚
沙发  发表于: 2021-07-12 , 来自:江苏省0==
恭喜恭喜,后期需要美缝的欢迎关注我们哦~
爆料有奖!关注昆山论坛抖音号,抖音搜索“昆山论坛”,或搜索抖音号:ksbbs
 
离线18962555712
级别: 昆山过客
发帖
23
昆币
37 枚
板凳  发表于: 2021-07-15 , 来自:江苏省0==
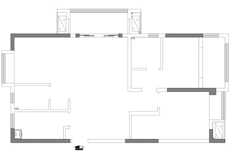
带大家看看我家的原始结构图和 后期方案

                      (原始结构图)





                            (平面布置图)

爆料有奖!关注昆山论坛抖音号,抖音搜索“昆山论坛”,或搜索抖音号:ksbbs
 
离线零收入
发帖
609
昆币
782 枚
地板  发表于: 2021-07-15 , 来自:江苏省0==
规模真宏达,小区看起来很不错
爆料有奖!关注昆山论坛抖音号,抖音搜索“昆山论坛”,或搜索抖音号:ksbbs
 
离线零收入
发帖
609
昆币
782 枚
4楼 发表于: 2021-07-15 , 来自:江苏省0==
楼主常来更新哦~
爆料有奖!关注昆山论坛抖音号,抖音搜索“昆山论坛”,或搜索抖音号:ksbbs
 
美女离线昆山伟宏门窗
级别: 禁止发言

发帖
18978
昆币
32400 枚
5楼 发表于: 2021-07-16 , 来自:江苏省0==
用户被禁言,该主题自动屏蔽!
爆料有奖!关注昆山论坛抖音号,抖音搜索“昆山论坛”,或搜索抖音号:ksbbs
 
离线18962555712
级别: 昆山过客
发帖
23
昆币
37 枚
6楼 发表于: 2021-07-17 , 来自:江苏省0==
回 零收入 的帖子
零收入:楼主常来更新哦~ (2021-07-15 11:02)

好的,抽空更新,平时有点忙,哈哈哈
爆料有奖!关注昆山论坛抖音号,抖音搜索“昆山论坛”,或搜索抖音号:ksbbs
 
离线齐家典尚
发帖
3680
昆币
4956 枚
7楼 发表于: 2021-07-21 , 来自:江苏省0==
恭喜业主开工大吉!!!!
希望业主多多上传美图!

装修日记http://www.ksbbs.com/read-htm-tid-4497784.html  
公司网址:http://[url][urlend6]/ (精彩案例邀您欣赏)

爆料有奖!关注昆山论坛抖音号,抖音搜索“昆山论坛”,或搜索抖音号:ksbbs
 
帅哥离线情相惜30206
发帖
826
昆币
717 枚
8楼 发表于: 2021-07-21 , 来自:江苏省0==
面子给的足足的
爆料有奖!关注昆山论坛抖音号,抖音搜索“昆山论坛”,或搜索抖音号:ksbbs
 
美女离线昆山飞宇门窗
级别: 禁止发言
发帖
490
昆币
551 枚
9楼 发表于: 2021-07-22 , 来自:江苏省0==
用户被禁言,该主题自动屏蔽!
爆料有奖!关注昆山论坛抖音号,抖音搜索“昆山论坛”,或搜索抖音号:ksbbs
 
快速回复
限76 字节
如果您提交过一次失败了,可以用”恢复数据”来恢复帖子内容
 
上一个 下一个