这个帖子准备好好记录下我们的装修之路,给以后的自己做个备忘录,祈祷自己要努力更新,加油吧
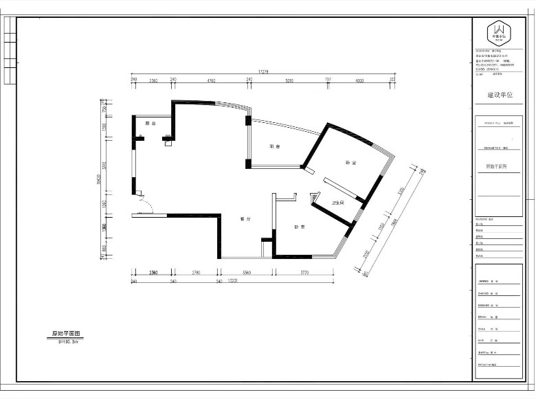
这是原始图,户型不方正哈,但不影响室内格局哈。
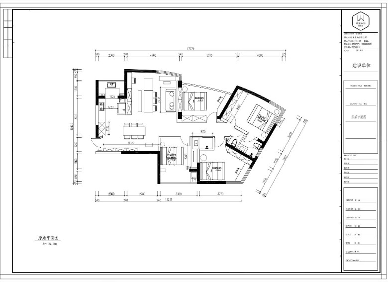
经过不到半个月的时间,确定下来的平面布置图,满意。

设计效果图部分,我们超喜欢,直接上图吧,设计师眼光很好,很契合我的审美。







关于挑选装修公司这部分:
因为我家的人对装修都一窍不通,也没有那么多的精力,所以没有废话,直接找装修公司装修基本就是我们的共识。装修最重要的是选择装修公司(或者选择靠谱的装修队),对于普通装修来说,要在全市上百家的装修公司中选择出一家自己信任并且满意的确实很难,有人形容说这就是一场赌博,全靠了运气。
可我却认为事在人为吧,于是我开始先后对论坛里的5家装修公司进行了接触了解,考察和反复比较,最终选择了印象水仙设计,正式进入了这场“赌局”,我选择装修公司的体会是:
1.要选择口碑比较好的,工地相对公开这个我很看重;
2.公司要有自己的装修理念、相对完善的管理标准、良好的工程品质;
3.设计上要有品位有新意,工作态度认真服务热心,能为客户着想;
4.施工材料一定要环保,质量要有保证,施工过程有条不紊;
5.最后是报价合理,性价比总是我们小百姓最关注的。
后续我空了补充更新,目前家里在砌墙阶段,
[ 此帖被陌生的旋律在2022-11-02 10:27重新编辑 ]