夜间模式
  • 501549阅读
  • 228回复

景悦府装修——装修小白的女汉纸养成记,晚来从水电开始更新 [复制链接]

上一主题 下一主题
离线大农虎
级别: 昆山新人
发帖
365
昆币
492 枚
只看楼主 使用道具 电梯直达
楼主  发表于: 2020-11-23 , 来自:江苏省0==
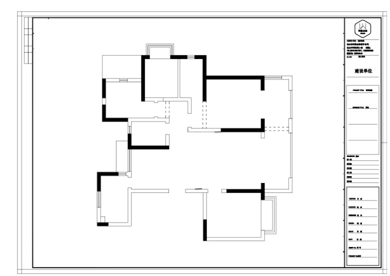
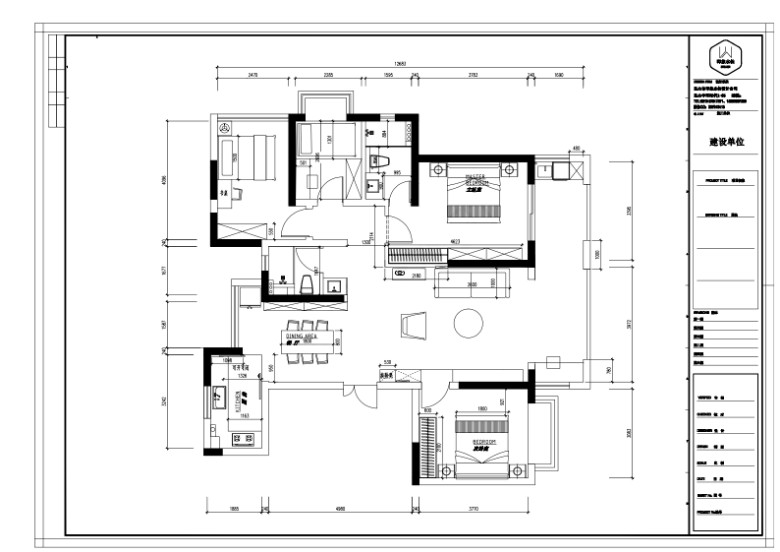
家装日记
小区: 景悦府
套内面积: 143 (平米)
预算: 40万 万
开工日期: 2020-10-14
装修风格: 简约
装修方式: 半包
装修公司: 昆山印象水仙室内设计公司
基本信息栏:


房型:四室两厅两卫一厨
建筑面积:143㎡
装修风格:现代风
装修总预算:40万内
包工方式:设计+半包+全案
装饰公司:印象水仙室内设计
设计师:朱朱
开工日期:2020年10月14日
楼盘地址:景悦府


装修脚印:没有最好,只有更好,希望我们家装修一切顺利。

我们家装修提上日程后,我一直在考虑要不要写装修日记,无奈文笔实在不好,上班之后写篇年终总结都是抓耳挠腮啊看看装大的前辈们写日记,那个个都是妙笔生花,下笔如有神啊估计小女子写出来的东西跟流水账没区别了但是、但可是、可但是......想想我这一辈子估计也就这么一次装修的机会了,不留下点记录实在可惜想了很久还是决定爬到论坛上写篇装修日记,算是纪念自己即将开始摸爬滚打的装修路;偶决定顶上老公的位置,亲自来发贴,发挥各自长处吧。老公管技术,我管码字。


我管码字,因为我能记得写,而且码字速度比他快些,他管技术,是因为这水啊、电啊、家具啊,他懂得比我多,眼神比我也要好很多,男女搭配干活不累嘛,我们家还是分工很明确的,不存在争议,老人不参与装修,我们小两口做主。


我就管他要质量,要效果,要舒适度……好了,其他先不多说了,先上图哦。

















最新家里的施工现场,拍了几张照片发来,大家可以开始给我留言啦
















本帖评分记录
伤痛有痕 昆币 +1 -来自昆山论坛APP 2022-09-08
蛮好德装饰 昆币 +1 -来自昆山论坛APP 2022-01-17
starwutian 昆币 +1 -来自昆山论坛APP 2021-09-25
puckl 昆币 +1 -来自昆山论坛APP 2021-06-19
无识无知 昆币 +1 -来自昆山论坛APP 2021-05-08
清凉迎夏 昆币 +1 -来自昆山论坛APP 2021-04-27
maggieyang 昆币 +1 -来自昆山论坛APP 2021-04-11
轮子不会转弯 昆币 +1 -来自昆山论坛APP 2021-03-16
大农虎 昆币 +1 -来自昆山论坛APP 2020-12-22
稳如泰山 昆币 +1 -来自昆山论坛APP 2020-12-13
12
14条评分昆币+14
爆料有奖!关注昆山论坛抖音号,抖音搜索“昆山论坛”,或搜索抖音号:ksbbs
 
美女离线装修版客服
发帖
10174
昆币
22137 枚
沙发  发表于: 2020-11-23 , 来自:江苏省0==
恭喜楼主  楼主您也可以来参加本届 《薇薇家居》家装日记大赛哦,参赛就有机会获得7888元现金!
https://bbs.kshot.com/read-htm-tid-6292703.html活动详情了解一下
爆料有奖!关注昆山论坛抖音号,抖音搜索“昆山论坛”,或搜索抖音号:ksbbs
 
离线nobody丶
级别: 昆山新人
发帖
179
昆币
193 枚
板凳  发表于: 2020-11-23 , 来自:江苏省0==
恭祝楼主开工大吉
爆料有奖!关注昆山论坛抖音号,抖音搜索“昆山论坛”,或搜索抖音号:ksbbs
 
帅哥离线情相惜30206
发帖
826
昆币
717 枚
地板  发表于: 2020-11-23 , 来自:江苏省0==
开工仪式好喜庆呀
本帖评分记录
大农虎 昆币 +1 -来自昆山论坛APP 2020-11-30
1条评分昆币+1
爆料有奖!关注昆山论坛抖音号,抖音搜索“昆山论坛”,或搜索抖音号:ksbbs
 
发帖
1476
昆币
734 枚
4楼 发表于: 2020-11-24 , 来自:江苏省0==
恭喜楼主,后期需要美缝的话,可以关注我
爆料有奖!关注昆山论坛抖音号,抖音搜索“昆山论坛”,或搜索抖音号:ksbbs
 
发帖
6918
昆币
6420 枚
5楼 发表于: 2020-11-24 , 来自:江苏省0==
欢迎关注
【寅盛装饰无毒家装】装修不环保砸掉重做,昆山十年,口碑见证!
公司官网:[url][urlend4]  
VR案例:[url][urlend4]  
精品案例:[url][urlend4]  
东店:昆山市太湖路588号,左岸尚海湾3-103商铺 ( 近震川东路,阳光水世界对面
昆山城北店:昆山市柏庐北路94号(柏庐大桥向北200米左右

爆料有奖!关注昆山论坛抖音号,抖音搜索“昆山论坛”,或搜索抖音号:ksbbs
 
美女离线昆山伟宏门窗
级别: 禁止发言

发帖
18978
昆币
32400 枚
6楼 发表于: 2020-11-24 , 来自:江苏省0==
用户被禁言,该主题自动屏蔽!
爆料有奖!关注昆山论坛抖音号,抖音搜索“昆山论坛”,或搜索抖音号:ksbbs
 
美女离线荣盛门窗
级别: 禁止发言

发帖
7737
昆币
8552 枚
7楼 发表于: 2020-11-24 , 来自:江苏省0==
用户被禁言,该主题自动屏蔽!
爆料有奖!关注昆山论坛抖音号,抖音搜索“昆山论坛”,或搜索抖音号:ksbbs
 
美女离线等你下课喝奶茶
发帖
880
昆币
982 枚
8楼 发表于: 2020-11-25 , 来自:江苏省0==
效果图很漂亮,家也够大,期待楼主早点更新
本帖评分记录
刚毅小梅 昆币 +1 -来自昆山论坛APP 2020-11-26
1条评分昆币+1
爆料有奖!关注昆山论坛抖音号,抖音搜索“昆山论坛”,或搜索抖音号:ksbbs
 
级别: 昆山新人
发帖
173
昆币
662 枚
9楼 发表于: 2020-11-25 , 来自:江苏省0==
   干净,整洁,看着舒服,  就是 阳台要保护,最近哪里又有人掉下去了
本帖评分记录
大农虎 昆币 +1 -来自昆山论坛APP 2020-11-30
1条评分昆币+1
爆料有奖!关注昆山论坛抖音号,抖音搜索“昆山论坛”,或搜索抖音号:ksbbs
 
快速回复
限76 字节
如果您在写长篇帖子又不马上发表,建议存为草稿
 
上一个 下一个