夜间模式
  • 1190057阅读
  • 195回复

[装修讨论]景悦府复式楼正式开始装修,以后有空我就来更新! [复制链接]

上一主题 下一主题
离线足音无迹
级别: 昆山新人
发帖
314
昆币
449 枚
只看楼主 使用道具 电梯直达
楼主  发表于: 2022-03-15 , 来自:江苏省0==
关于装修,第一部让你们头疼的是什么?

对我而言,我们家审美真的都一般般,但对家里装修风格的设计要求极高,赚钱买个大house,想好好装修,你们能明白我的心情不?

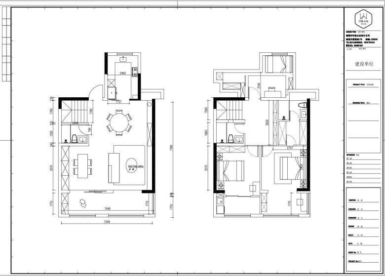
第一步我先不唠家常了,先把我满意的平面图和效果图发出来看看,后期关于我如何找装修公司及价位和避坑,后面再慢慢详聊。

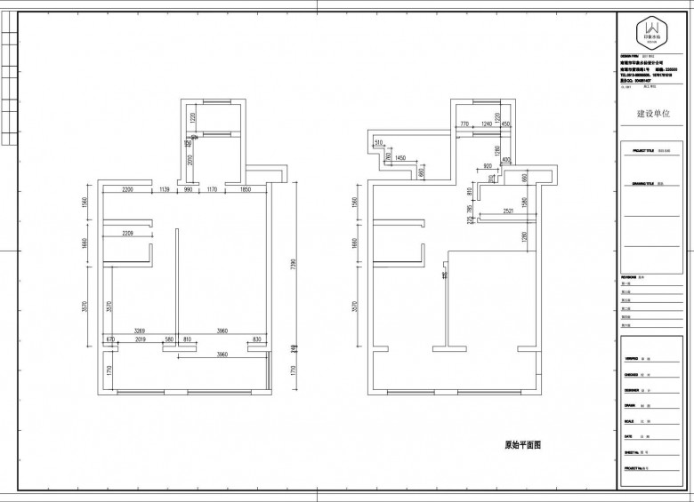
原始和平面,改造对比。


效果图刚刚问设计师要了几张,我理想的新家,希望可以实现,尽量超越这个效果,哈哈哈!







本帖评分记录
曾踏月而来 昆币 +1 -来自昆山论坛APP 2024-05-17
固守脆弱 昆币 +1 -来自昆山论坛APP 2023-07-28
暖通骚年 昆币 +1 -来自昆山论坛APP 2023-05-24
印象水仙设计 昆币 +1 -来自昆山论坛APP 2023-03-28
sping0711 昆币 +1 -来自昆山论坛APP 2023-02-20
炅然 昆币 +1 -来自昆山论坛APP 2022-09-21
奥沙利坦 昆币 +1 -来自昆山论坛APP 2022-08-31
田rh9 昆币 +1 -来自昆山论坛APP 2022-08-02
樱桃小包子 昆币 +1 -来自昆山论坛APP 2022-06-06
垂丝逸影 昆币 +1 -来自昆山论坛APP 2022-03-19
12
11条评分昆币+11
爆料有奖!关注昆山论坛抖音号,抖音搜索“昆山论坛”,或搜索抖音号:ksbbs
 
帅哥离线印象水仙设计
级别: 家装商家
发帖
11356
昆币
19441 枚
沙发  发表于: 2022-03-16 , 来自:江苏省0==
哎呀,才看到,谢谢分享
爆料有奖!关注昆山论坛抖音号,抖音搜索“昆山论坛”,或搜索抖音号:ksbbs
 
发帖
6918
昆币
6420 枚
板凳  发表于: 2022-03-16 , 来自:江苏省0==
欢迎关注
【寅盛装饰无毒家装】装修不环保砸掉重做,昆山十年,口碑见证!
公司官网:[url][urlend2]  
VR案例:[url][urlend2]
精品案例:[url][urlend2]  
城东店:昆山市太湖路588号,左岸尚海湾3-103商铺 ( 近震川东路,阳光水世界对面 )
昆山城北店:昆山市柏庐北路94号( 柏庐大桥向北200米左右 )

爆料有奖!关注昆山论坛抖音号,抖音搜索“昆山论坛”,或搜索抖音号:ksbbs
 
离线scq
发帖
6052
昆币
8679 枚
地板  发表于: 2022-03-17 , 来自:江苏省0==
阳台暖客厅冷?
爆料有奖!关注昆山论坛抖音号,抖音搜索“昆山论坛”,或搜索抖音号:ksbbs
 
离线scq
发帖
6052
昆币
8679 枚
4楼 发表于: 2022-03-17 , 来自:江苏省0==
图纸好像是什么水仙
楼中楼
  • 2022-03-17 16:30 一去不回头: 我了解过,印象水仙,
  • 2022-03-21 10:08 坠落的枯叶: 服务不错
本帖评分记录
凯奇 昆币 +1 -来自昆山论坛APP 2023-03-14
坠落的枯叶 昆币 +1 -来自昆山论坛APP 2022-03-21
2条评分昆币+2
爆料有奖!关注昆山论坛抖音号,抖音搜索“昆山论坛”,或搜索抖音号:ksbbs
 
级别: 昆山新人
发帖
136
昆币
195 枚
5楼 发表于: 2022-03-17 , 来自:江苏省0==
看效果图好大气的装修啊
爆料有奖!关注昆山论坛抖音号,抖音搜索“昆山论坛”,或搜索抖音号:ksbbs
 
离线足音无迹
级别: 昆山新人
发帖
314
昆币
449 枚
6楼 发表于: 2022-03-18 , 来自:江苏省0==
设计师很贴心的
本帖评分记录
足音无迹 昆币 +1 -来自昆山论坛APP 2022-03-20
1条评分昆币+1
爆料有奖!关注昆山论坛抖音号,抖音搜索“昆山论坛”,或搜索抖音号:ksbbs
 
美女离线荣盛门窗
级别: 禁止发言

发帖
7737
昆币
8552 枚
7楼 发表于: 2022-03-18 , 来自:江苏省0==
用户被禁言,该主题自动屏蔽!
本帖评分记录
足音无迹 昆币 +1 -来自昆山论坛APP 2022-03-20
1条评分昆币+1
爆料有奖!关注昆山论坛抖音号,抖音搜索“昆山论坛”,或搜索抖音号:ksbbs
 
离线一哄而散
级别: 昆山新人
发帖
119
昆币
196 枚
8楼 发表于: 2022-03-20 , 来自:江苏省0==
设计师好细心
本帖评分记录
足音无迹 昆币 +1 -来自昆山论坛APP 2022-03-20
1条评分昆币+1
爆料有奖!关注昆山论坛抖音号,抖音搜索“昆山论坛”,或搜索抖音号:ksbbs
 
离线足音无迹
级别: 昆山新人
发帖
314
昆币
449 枚
9楼 发表于: 2022-03-20 , 来自:江苏省0==
项目经理实时都在提醒,后期浇筑之前立柱一定要加固,安全第一,负责第一,确实。







专业的。
楼中楼
  • 2022-03-21 10:07 坠落的枯叶: 他们家施工设计都很不错
本帖评分记录
凯奇 昆币 +1 -来自昆山论坛APP 2023-03-14
坠落的枯叶 昆币 +1 -来自昆山论坛APP 2022-03-21
2条评分昆币+2
爆料有奖!关注昆山论坛抖音号,抖音搜索“昆山论坛”,或搜索抖音号:ksbbs
 
快速回复
限76 字节
如果您在写长篇帖子又不马上发表,建议存为草稿
 
上一个 下一个